
Kreuznacher Str. 68
70372 Stuttgart
Tel: 0711-954691-0
Fax: 0711-954691-22
info@strehle-ingenieure.de
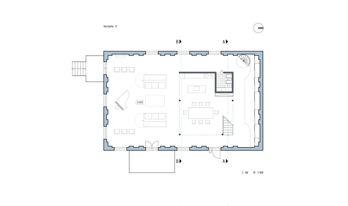
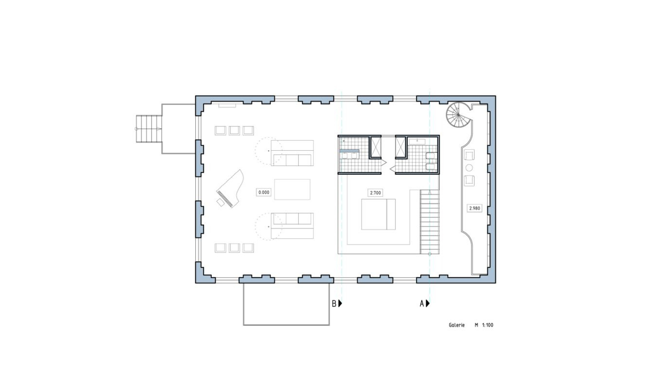
Im Inneren des sechs Meter hohen Saals entsteht eine moderne, weiträumige und lichtdurchflutete Wohnung, welche auf Wunsch ganz individuell geplant werden kann. In direkter Nähe zum Residenzschloss Ludwigsburg gelegen, ist sie umgeben von barocken Gebäuden und beliebten Restaurants und gliedert sich somit ideal in das urbane Stadtleben ein.
Die Nassbereiche wurden in einen Kern eingeschlossen, welcher sich im rückwärtigen, dunkleren Teil des Gebäudes befindet. In dieser Variante befinden sich im Kern die Küche und das Gäste WC. Die Möblierung kann unterschiedlich ausgewählt werden und macht den großen Raum wohnlich. Je nach Auswahl kann man sich frei in den Räumlichkeiten bewegen. Auf der Galerie in der zweiten Ebene befindet sich der private Bereich (Schlafräume, Ankleidezimmer, sanitäre Einrichtungen). Die Empore ist absichtlich vom Kern getrennt und kann über eine Wendeltreppe erreicht werden. Sie dient als Bibliothek. Die Nutzflächen der zwei Ebenen und der Empore betragen insgesamt 220m².

