
Kreuznacher Str. 68
70372 Stuttgart
Tel: 0711-954691-0
Fax: 0711-954691-22
info@strehle-ingenieure.de
Bauherr: Regierungspräsidium Stuttgart
Leistung S&P: Entwurfs-, Ausschreibung- und Ausführungsplanung
Bausumme: ca. 1,1 Mio. Euro
Im Zuge der Ortsumfahrung Weilimdorf liegt die im Jahr 1985 aus Holz erstellte einstreifige Wirtschaftswegbrücke über die B295.
Im Jahre 2014 wurden bei der Hauptprüfung nach DIN 1076 erhebliche Feuchtigkeitsschäden am Überbau festgestellt.
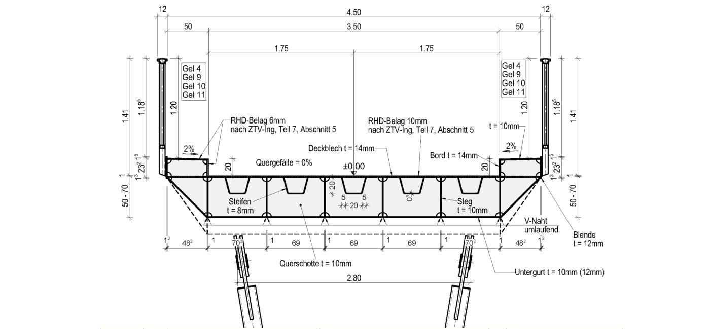
Aufgrund der starken Schädigung des Überbaus musste dieser ersetzt werden. Aus Gründen der Wirtschaftlichkeit und zur Gewährleistung der Dauerhaftigkeit fiel die Entscheidung auf einen dichtgeschweißten, geschlossenen Stahlhohlkasten, welcher auf den bestehenden Stahlbetonwiderlagern auflagert.
Zur Reduktion der Zwängungen wurde das statische Grundsystem geändert und auf die bestehenden Schrägstützen in der Böschung verzichtet.
Die Mittelpfeilergründung musste an die aktuellen Anforderungen gemäß RPS 2009 angepasst werden.

